appartement SCHILTIGHEIM
SCHILTIGHEIM - 67300
76m², T4
1008€
Description
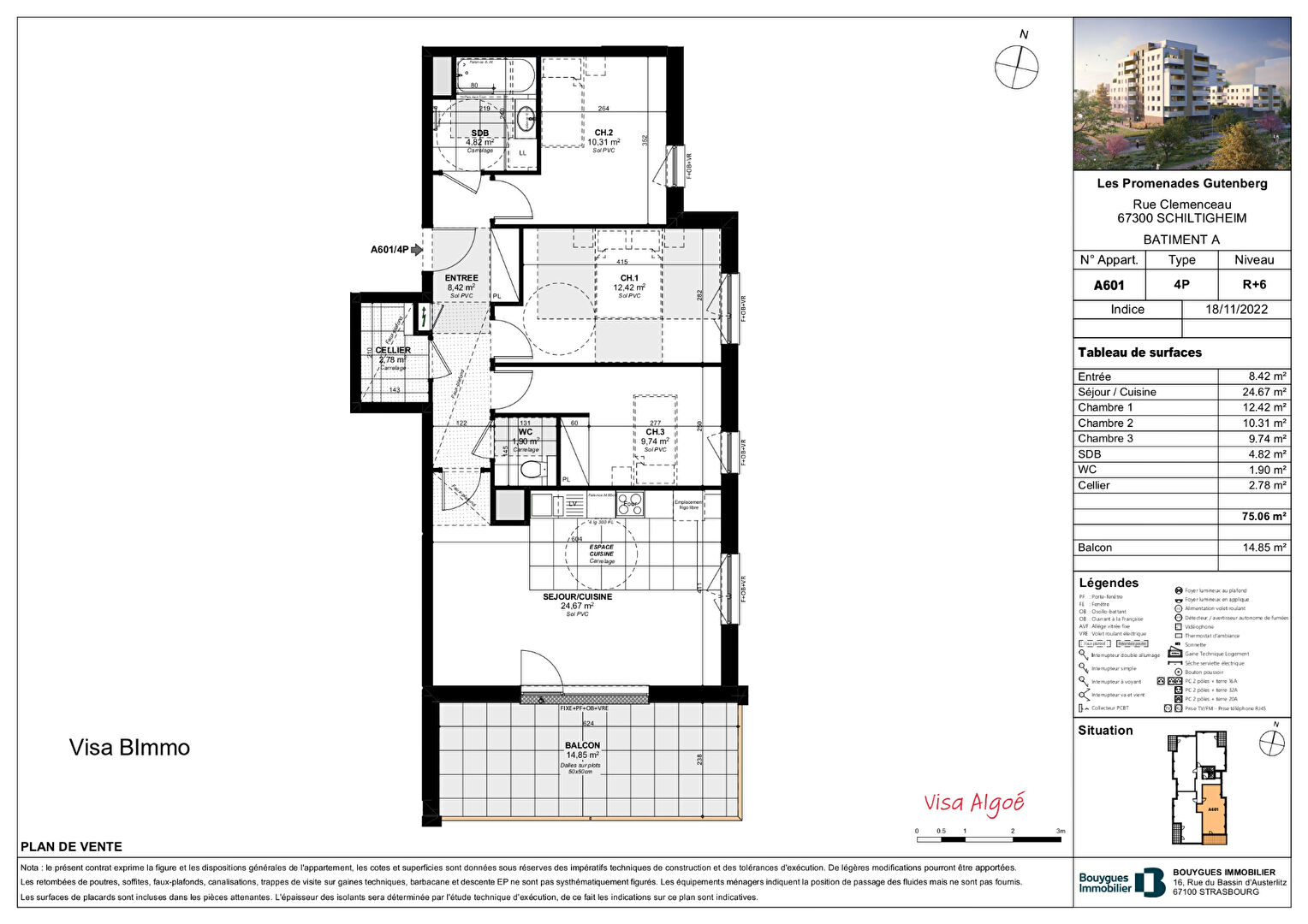
NEUF ? T4 76m2 ? rue Clémenceau ? SCHILTINGHEIM Sans frais d'agence et disponible à partir du 22 Septembre 2025. Logement conventionné soumis à des CONDITIONS DE RESSOURCES. Au 6eme étage avec ascenseur, dans immeuble neuf de sept étages, devenez les premiers locataires de cet appartement T4 de 76m2. Situé rue Clémenceau à Schiltigheim, à proximité immédiate nombreux commerces (LECLERC, boulangerie, pharmacie) et des écoles, avec l'École des Pruneliers et le Collège Lamartine à moins de 500 mètres. Le logement se compose d'un séjour/cuisine aménagée de 24m2, ouvrant sur un balcon de 8m2, un cellier, de 3 chambres, d'une salle de bain avec baignoire et de WC séparé. Deux places de stationnement complètent le logement. Loyer CC : 1 008 euros/mois dont 188 euros de charges incluant l'entretien des communs, de l'ascenseur et des extérieurs, l'enlèvement des ordures ménagères ainsi qu'une provision sur le chauffage et l'eau chaude (soumis à la régularisation annuelle). Déport de garantie : 820 euros Pas de frais d'agence. Eau chaude et Chauffage collectif (système au sol alimenté au gaz de ville) Eau froide et électricité en charge individuelle. DPE : B (82KWh/m2/an) et GES: B (10 kgsCO2/m2/an) Estimation des couts annuels d'énergie au 1er Janvier 2025 entre 592 euros et 800 euros/an (prix moyens des énergies indexés sur les années 2021, 2022 et 2023, abonnement compris).
Chauffage et diagnostics
Diagnostic de performance énergétique (DPE)
Index d'émission de gaz à effet de serre (GES)
Emplacement
67300 SCHILTIGHEIM


